W3C

W3C Xenc WG and XKMS WS Redwood Meeting Logistics

Note: The W3C is holding an XKMS Workshop on July 19th, the day prior to this encryption face-to-face, at the same place -- hosted by Verisign. This page provides logistic information for both meetings.

20 July, 2001

A meeting of the W3C XML-Encryption Working Group is being hosted by VeriSign at the Sofitel Redwood Shores Hotel, Redwood City, California on Friday July 20th, 2001. Registration has closed.

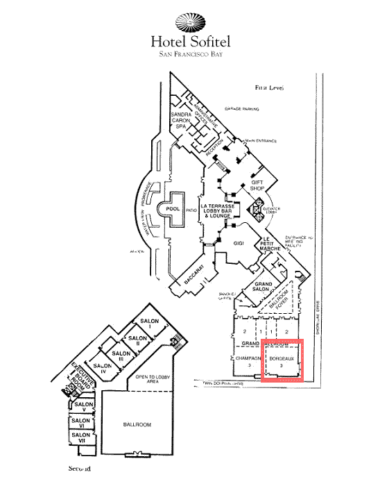
Venue and suggested Hotel [map]

Sofitel Hotel
223 Twin Dolphin Drive
Redwood City, CA
phone: (650) 598-9000

Local contact: Deanne O'Connor <doconnor@verisign.com>, tel:650-961-7500.

The meeting will take place in the Bordeaux room from between 8:30 a.m. to 5:00 p.m. There will be postings in the Lobby Area. Negotiated room rate of $149/night July 18th/19th/20th, Wednesday/Thursday/Friday. Please let them know when you are registering that you are attending the W3C meeting held at the Sofitel and request the discounted room rate. NOTE. This is on a first come first serve basis and this hotel usually is booked 3 weeks in advance. Also, please contact Deanne O'Conner with specific food preferences as soon as possible if they are not covered by the registration script.

Airports

From San Francisco Airport (SFO) to Meeting [map and directions]

Distance: 11.7 miles Approximate Travel Time: 21 mins

Directions:

  1. Start out going West on ARRIVING FLIGHTS ACC towards AIRPORT EXIT by turning left.
  2. Stay straight to go onto AIRPORT EXIT.
  3. Take the US-101 SOUTH ramp towards SAN JOSE.
  4. Merge onto US-101 S.
  5. Take the RALSTON AVE exit towards BELMONT.
  6. Keep LEFT at the fork in the ramp.
  7. Keep RIGHT at the fork in the ramp.
  8. Merge onto RALSTON AVE.
  9. Stay straight to go onto MARINE PKWY.
  10. Turn RIGHT onto TWIN DOLPHIN DR.

Taxis are available at airport. It will be around $30 to the hotel. You can also rent a car at SFO, or use public transport, CalTrain, which runs a few times an hour between San Jose and San Francisco. Exit at San Carlos and take a taxi to the hotel for around $10.

From San Jose Airport (SJC) to Meeting [map and directions]

Distance: 23.4 miles Approximate Travel Time: 28 mins

Directions:

  1. Start out going Northeast on AIRPORT PKWY by turning left.
  2. Turn LEFT onto GUADALUPE PKWY/CA-87.
  3. Take the US-101 NORTH ramp towards SAN FRANCISCO.
  4. Merge onto US-101 N.
  5. US-101 N becomes US-101 N/CA-84 W.
  6. Stay straight to go onto US-101 N.
  7. Take the RALSTON AVE exit towards BELMONT.
  8. Keep RIGHT at the fork in the ramp.
  9. Merge onto MARINE PKWY.
  10. Turn RIGHT onto TWIN DOLPHIN DR.

Taxis are available at airport, but will be expensive, in the range of $80. Better is to rent a car at SJC, or use public transport, CalTrain, which runs a few times an hour between San Jose and San Francisco. Exit at San Carlos and take a taxi to the hotel for around $10.

Other Airports

If you can find no flights to either SJC or SFO, you may want to consider flying into Oakland Airport [map and direction], which is some 26 miles away from the hotel.